Architect

Štvorlístky

Year:
11/2021
Location:
Špačince, SK
Authors:
Oliver Hacaj, Marek Malček

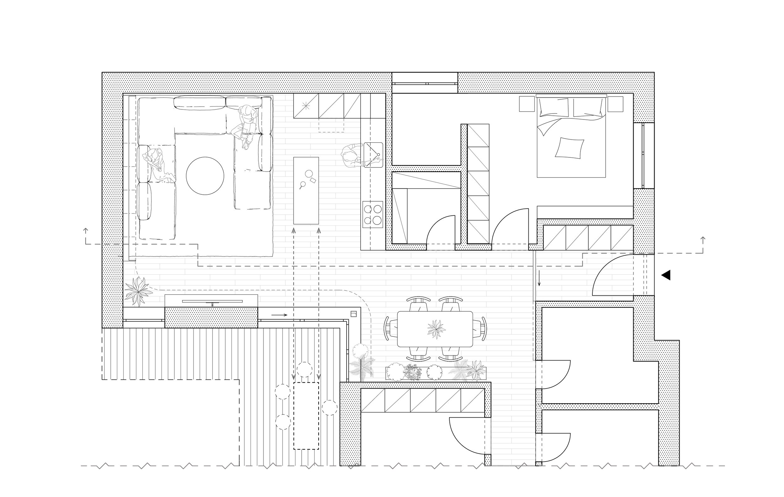
Zadanie malej mierky. V podstate zariadiť dennú časť interiéru v rodinnom dome.

Spojenú kuchyňu a obývaciu izbu sme doplnili o rozmernú pohovku, a dominantný prvok - policovú stenu. Kuchynský ostrovček sme navrhli ako mobilný, s možnosťou presunutia na terasu.

Všetko v striedmej materialite a farebnosti.