1/8
BDV
- Year:
- 10/2021
- Location:
- Voderady, SK
- Authors:
- Oliver Hacaj
Novú obytnú zóny na rozhraní obce a krajiny, tvorí šestica bytových domov, ktorá prirodzene nadväzuje na existujúcu výstavbu.
Jednotlivé budovy sú natočené tak, aby medzi nimi vznikali atraktívne priestory pre zeleň, šport a oddych. Vzniká tak parčík, akýsi filter medzi viac podlažnou zástavbou na okraji obce a pripravovanou výstavbou rodinných domov
Natočenia zároveň rešpektujú juhovýchodnú, prípadne juhozápadnú orientáciu jednotlivých bytov.
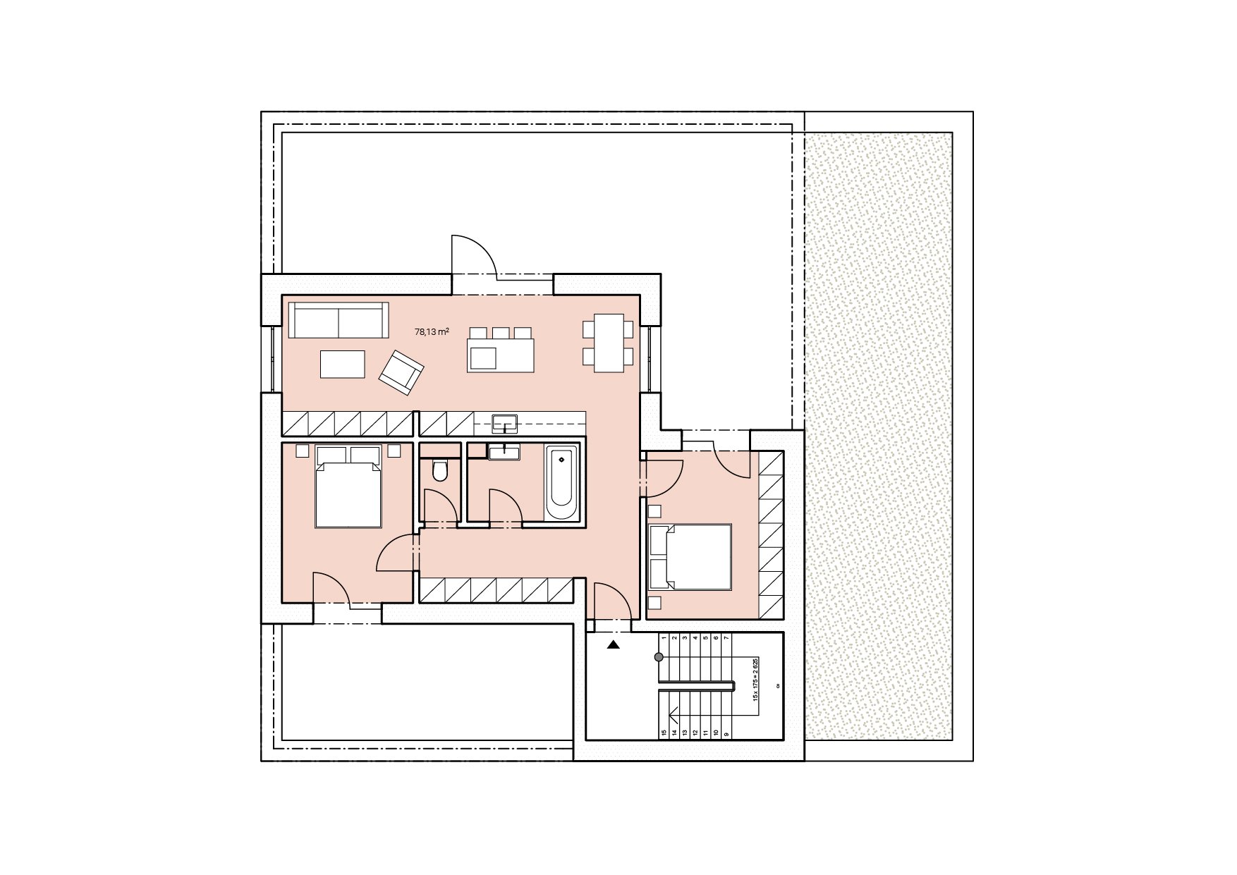
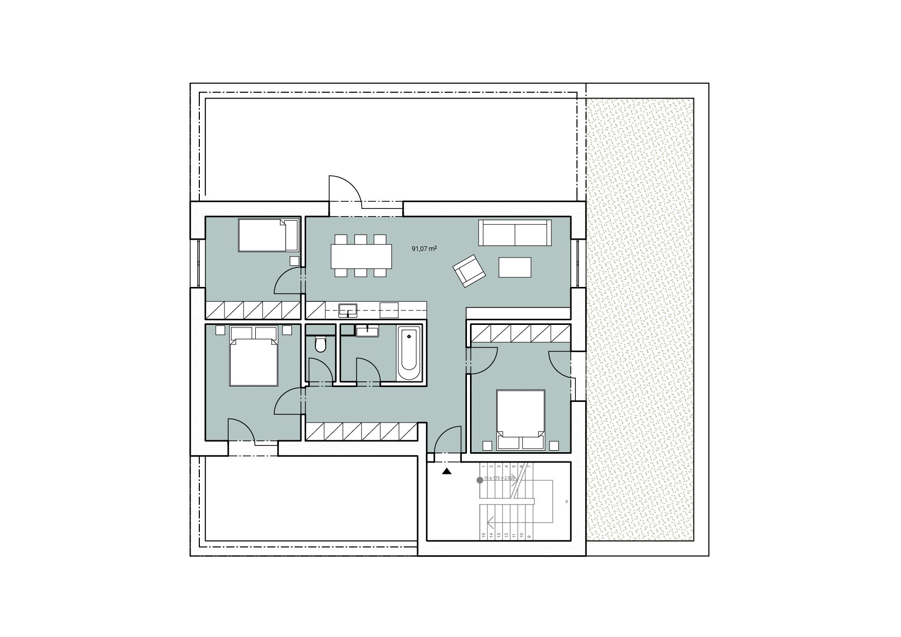
Kombináciu dvojizbových a jednoizbových bytov na troch nadzemných podlažiach, dopĺňajú veľkorysé trojizbové, prípadne štvorizbové byty na štvrtom, ustúpenom podlaží.
Tie disponujú rozľahlými terasami s výhľadmi do okolitej krajiny.